2915 Harbor View Avenue, TAMPA, FL 33611
Active
Property Photos
Would you like to sell your home before you purchase this one?
Priced at Only: $3,800,000
For more Information Call:
Address: 2915 Harbor View Avenue, TAMPA, FL 33611
Property Location and Similar Properties
- MLS#: TB8501200 ( Residential )
- Street Address: 2915 Harbor View Avenue
- Viewed: 6
- Price: $3,800,000
- Price sqft: $658
- Waterfront: No
- Year Built: 2024
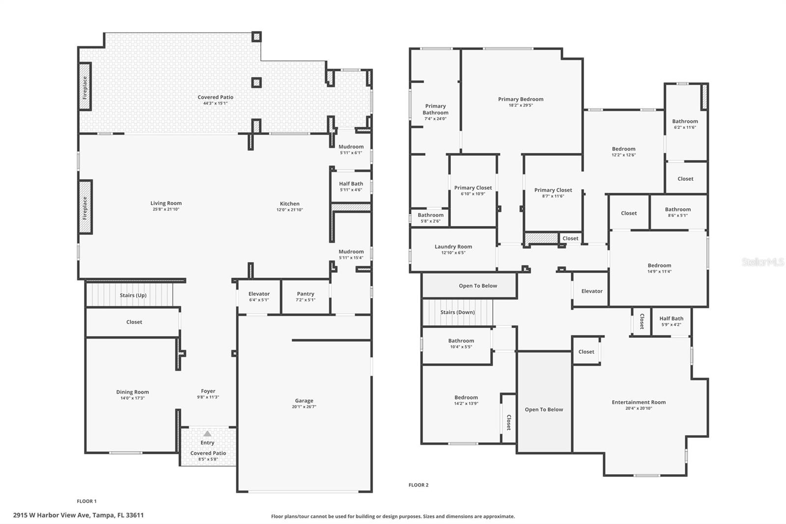
- Bldg sqft: 5774
- Bedrooms: 4
- Total Baths: 6
- Full Baths: 4
- 1/2 Baths: 2
- Garage / Parking Spaces: 2
- Days On Market: 3
- Additional Information
- Geolocation: 27.9026 / -82.491
- County: HILLSBOROUGH
- City: TAMPA
- Zipcode: 33611
- Subdivision: Harbor View
- Elementary School: Roosevelt HB
- Middle School: Coleman HB
- High School: Plant HB
- Provided by: SMITH & ASSOCIATES REAL ESTATE
- Contact: Stephen Gay
- 813-839-3800

- DMCA Notice
-
DescriptionIdeally positioned on a picturesque, sidewalk lined street in the heart of Bayshore Beautiful, just moments from iconic Bayshore Boulevard, this nearly new custom residence by Taralon Homes delivers refined architectural presence and elevated living throughout. A pavered circular drive, travertine entry steps, and classic Bevolo gas lanterns create a striking arrival. Inside, a grand foyer with soaring ceilings and statement Restoration Hardware lighting introduces an open, light filled floor plan with 7.5" naturally aged Medallion wide plank flooring, 8' solid core interior doors, and level five smooth drywall. Formal dining with custom built in cabinetry and a full wet bar featuring Sub Zero refrigeration and a wine fridge anchors the main level alongside an expansive great room. This room is highlighted by a marble clad electric fireplace wall and wall length sliding glass doors that open seamlessly to the outdoors. The chefs kitchen pairs sculptural design with exceptional function, featuring a dramatic marble waterfall island, dual Thermador refrigerators, a six burner Thermador gas range with custom hood, galley sink with on demand filtered water, under cabinet lighting, and built in refrigeration drawers. A secondary wet bar with wine refrigeration and ice machine connects directly to the outdoor bar, while a fully equipped scullery with marble counters, additional dishwasher, and walk in pantry provides discreet convenience. A custom drop zone with built ins sits just off the garage. Indoor outdoor living is effortless at the covered lanai with travertine flooring, drop down screens, recessed lighting, speakers, and a fully appointed alfresco kitchen, overlooking the heated saltwater pool and spa framed by lush landscaping and hardscape. Upstairs, a flexible media lounge with custom cabinetry and wet bar complements generously sized secondary suites with custom closets and marble finished en suite baths. The primary suite is a serene retreat with coffered ceilings, dual custom walk in closets, and a spa inspired bath featuring a soaking tub, oversized walk in shower with jewel showerheads, marble vanities with makeup station, towel warmer, and Toto fixtures. Additional highlights include elevator access to all levels, impact rated windows and doors, spray foam attic insulation, two natural gas wall mounted tankless water heaters, pre wired low voltage security and surround sound, Lutron lighting, integrated speakers, owned security cameras, a pool bath with marble waterfall vanity, and a spacious laundry room with built ins. The two car garage with lift offers epoxy flooring, rear yard access, and integrated irrigation controls. Enhanced by a Generac whole home generator and meticulous attention to detail, this exceptional residence offers timeless luxury just steps from Tampas most celebrated waterfront promenade.
Payment Calculator
- Principal & Interest -
- Property Tax $
- Home Insurance $
- HOA Fees $
- Monthly -
For a Fast & FREE Mortgage Pre-Approval
Apply Now
Apply NowFeatures
Building and Construction
- Builder Model: Riviera
- Builder Name: Taralon Homes
- Covered Spaces: 0.00
- Exterior Features: Dog Run, Lighting, Outdoor Grill, Private Yard, Sidewalk, Sliding Doors
- Fencing: Vinyl
- Flooring: Ceramic Tile, Hardwood, Marble
- Living Area: 4558.00
- Roof: Shingle
Land Information
- Lot Features: Flood Insurance Required, FloodZone, City Limits, In County, Sidewalk, Paved
School Information
- High School: Plant-HB
- Middle School: Coleman-HB
- School Elementary: Roosevelt-HB
Garage and Parking
- Garage Spaces: 2.00
- Open Parking Spaces: 0.00
- Parking Features: Circular Driveway, Driveway, Garage Door Opener, Other
Eco-Communities
- Pool Features: Auto Cleaner, Deck, Fiber Optic Lighting, Gunite, Heated, In Ground, Lighting, Salt Water
- Water Source: Public
Utilities
- Carport Spaces: 0.00
- Cooling: Central Air
- Heating: Central, Electric, Natural Gas
- Pets Allowed: Yes
- Sewer: Public Sewer
- Utilities: BB/HS Internet Available, Cable Available, Electricity Connected, Natural Gas Connected, Sewer Connected, Water Connected
Finance and Tax Information
- Home Owners Association Fee: 0.00
- Insurance Expense: 0.00
- Net Operating Income: 0.00
- Other Expense: 0.00
- Tax Year: 2024
Other Features
- Appliances: Bar Fridge, Dishwasher, Disposal, Gas Water Heater, Ice Maker, Kitchen Reverse Osmosis System, Microwave, Range, Range Hood, Refrigerator, Wine Refrigerator
- Country: US
- Furnished: Unfurnished
- Interior Features: Built-in Features, Ceiling Fans(s), Coffered Ceiling(s), Crown Molding, Dumbwaiter, Eat-in Kitchen, Elevator, High Ceilings, Kitchen/Family Room Combo, PrimaryBedroom Upstairs, Solid Wood Cabinets, Stone Counters, Tray Ceiling(s), Walk-In Closet(s), Wet Bar
- Legal Description: HARBOR VIEW LOT 9
- Levels: Two
- Area Major: 33611 - Tampa
- Occupant Type: Owner
- Parcel Number: A-03-30-18-3W1-000000-00009.0
- Style: Contemporary
- Zoning Code: RS-60
Nearby Subdivisions
Anita Sub
Asbury Park
Asbury Park A Re Subdivision O
Ballast Point
Barr City
Bay City Rev Map
Baybridge Rev
Bayhill Estates
Bayhill Estates 2nd Add
Bayhill Estates 2nd Addition
Bayshore Court
Bel Mar Rev
Blackburn Sub
Boulevard Heights
Bridgeview Estates
Brobston Fendig Co Half Wa
Brobston Fendig And Co Half Wa
Butler Mc Intosh Sub
Chambray Sub Rep
Crescent Park
East Interbay Area
Fairlawn Estates 1st Add
Forest Hills
Ganbridge City 22
Gandy Blvd Park
Gandy Blvd Park 2nd Add
Gandy Blvd Park 3rd Add
Gandy Blvd Park 4th Add
Gandy Blvd Park Add
Gandy Boulevard Park
Gandy Manor
Gandy Manor 2nd Add
Gandy Manor Add
Guernsey Estates
Guernsey Estates Add
Guernsey Estates Addition
Harbor Shores Sub
Harbor View
Interbay
Interbay A Rev Book 9
Kevan Sub
Lykes H T Subdivision
Lynwood
Mac Dill Heights
Mac Dill Park
Manhattan Manor
Manhattan Manor 3
Manhattan Manor Rev
Margaret Anne Sub Revi
Martindales Sub
Martindales Subdivision
Meadowlawn
Midway Heights
Murray Heights
Norma Park Sub
Northpointe At Bayshore
Oakellars
Oakland Park Corr Map
Parnells Sub
Rosedale
Shell Point
Southside
Temple Square
Tibbetts Add To Harbor V
Tropical Pines
Tropical Terrace
Weiland Sub
Zapicos Resub
- Cynthia Koenig
- Tropic Shores Realty
- Mobile: 727.487.2232
- cindykoenig.realtor@gmail.com



























































